15
$599,995 Sale
Listed 1 day
36-38 Upper Hillsborough Street
· 0
· 0.0
· 0
· -
Key Facts
Key facts for 36-38 Upper Hillsborough Street
Property Type
Condo, Apartment
Parking
Garage: No, 0 parking
MLS #
202526124
Size
-
Basement
Unfinished, Full (Unfinished)
Listed on
-
Lot size
-
Tax
-
Days on Market
-
Year Built
1937
Maintenance Fee
-
Description
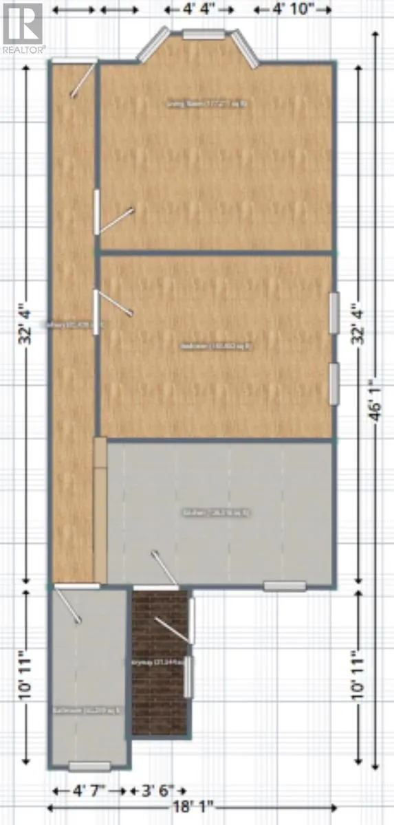
An exceptional investment opportunity in a prime location, 36-38 Upper Hillsborough Street is a 6-unit multifamily property situated on a generous double lot, making it ideal for new and seasoned investors. The property features a mix of spacious units with functional layouts, offering comfortable l...iving in a sought-after area. Tenants benefit from off-street parking, green space, and proximity to downtown amenities, public transit, and major routes. In addition to the main building, a separate structure at the rear of the property provides further value and flexibility, perfect for storage, a workshop, or potential future conversion (subject to approvals). With its large lot size, excellent location, and solid rental performance, 36-38 Upper Hillsborough Street represents both immediate value and long-term upside in a tight rental market. Don't miss this rare chance to acquire a multi-unit property with room to grow. (id:10452)
Similar Properties (No results)
Listing courtesy of: RE/MAX CHARLOTTETOWN REALTY
This REALTOR.ca listing content is owned and licensed by REALTOR® members of The Canadian Real Estate Association.